Choose your country
Go to your local Sikla page and discover offers for your country or sales region:
Country






Group: 1401
Hammerset Anchor for multiple attachment in cracked and single attachment in non-cracked concrete
Suitable for fixing pipelines, channels, etc. meeting the respective approval requirements
As expansion tool use the respective Setting Tool for Drop-In Anchor or the Plug-on Setting Tool ASW.
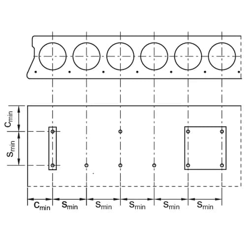
The 'intelligent' expansion cone facilitates the mounting with bore dia. tolerances or varying concrete quality. By the controlled deformation of the cone during installation, the needed edge and centre distances are decreasing considerably.
PDF (3.93 MB)
PDF (2.43 MB)
PDF (217 KB)
PDF (233 KB)
PDF (4.09 MB)
Drop-In Anchor for single fixing in non-cracked concrete and multiple fixing in cracked concrete. Suitable for fixing pipelines, channels, etc. meeting the respective approval requirements. The anchor must only be used for dry interiors. For damp locations and outdoor constructions the stainless steel version is required. No special drill required. Setting tool for distance-controlled forced expansion- Suitable for push-through mounting.
Certification







For the multiple use for non-structural applicatons Sikla approval ETA-10/0258 (M8 - M12), for installation in non-cracked concrete Sikla approval ETA-10/0257, fire protection testing, VdS-conform, FM-Approval ≥ M10.
Primary element material | steel |
Surface finish | electro galvanized (Fe//Zn) |
Corrosion protection class | C2 |
For load values, see additional documents.
Type M12x25: Delivery date on request – goods are procured on an order-by-order basis.
Software
This product is available in the following software.

Info | Type | Weight | Quantity | Part number | |
| AN ES M 8 X 25 | 0,012 kg/pcs. | 100 pcs. | 116618 | ||
| AN ES M 8 X 30 | 0,011 kg/pcs. | 100 pcs. | 110467 | ||
| AN ES M 8 X 40 | 0,015 kg/pcs. | 100 pcs. | 110468 | ||
| AN ES M10 X 25 | 0,016 kg/pcs. | 50 pcs. | 116619 | ||
| AN ES M10 X 30 | 0,018 kg/pcs. | 50 pcs. | 110506 | ||
| AN ES M10 X 40 | 0,022 kg/pcs. | 50 pcs. | 110469 | ||
| AN ES M12 X 25 | 0,023 kg/pcs. | 50 pcs. | 116620 | ||
| AN ES M12 X 50 | 0,042 kg/pcs. | 50 pcs. | 110470 | ||
| AN ES M16 X 65 | 0,101 kg/pcs. | 25 pcs. | 110471 | ||